VERMIETET * Singletraum * Lichterfüllte 2- Zimmer Wohnung mit Süd- Dachterrasse in Bogenhausen
VERMIETET * Singletraum * Lichterfüllte 2- Zimmer Wohnung mit Süd- Dachterrasse in Bogenhausen
Eckdaten
- Art Wohnung
- Lage 81927 München
- Miete zzgl. NK 1.690,00 €
- Warmmiete 1.980,00 €
- Nebenkosten 180,00 €
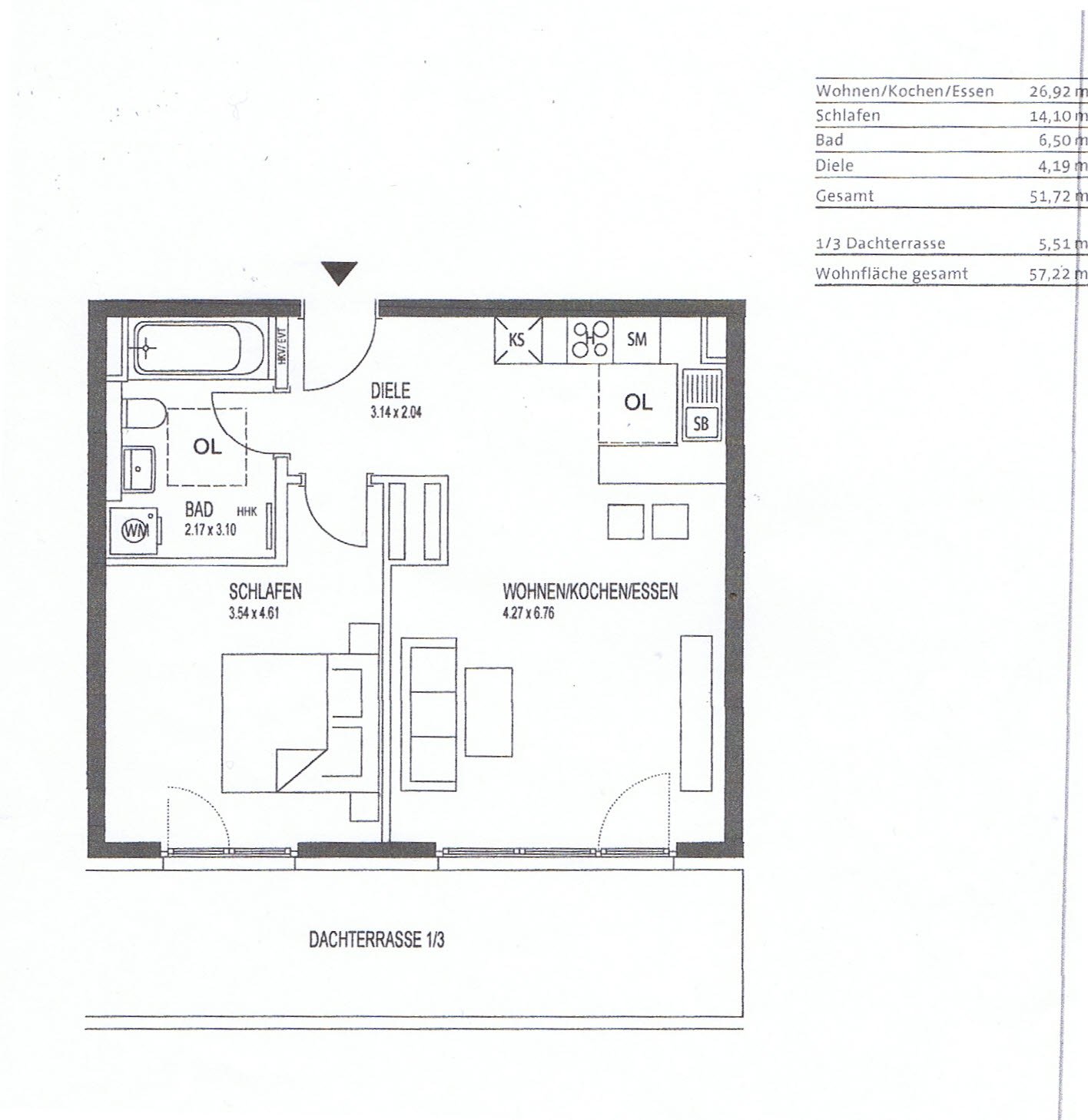
- Wohnfläche ca. 57 m²
- Zimmer 2
- Kellerfläche ca. 6 m²
- Baujahr 2017
- Nutzfläche ca. 68 m²
- Etagenzahl 4
- Etage 4
- Alt-/Neubau Neubau
- Heizungsart Zentralheizung
- Einbauküche ja
- Anzahl Balkone 1
- Stellplatztyp Tiefgarage
- Stellplatzanzahl 1
- Kaution € 5.400,00 €
- Stellplatzmiete 110,00 €
- Verfügbar ab 01.02.2026
- Bodenbelag Parkett
- Ausstattung des Bades Dusche Fenster
- Zustand Vollständig renoviert
- Immobilien-ID 687
Immobilie
Sonnige 2- Zimmer- Wohnung mit großer Dachterrasse in Bogenhausen
Zur Wohnung gehören:
– großes Kellerabteil
– 1 Stellplatz in der Tiefgarage mit modernem Parksystem
Lage
Die Wohnung befindet sich in der Englschalkinger Straße im Münchner Stadtteil Bogenhausen und ist umgeben von altem Baumbestand.
Die öffentlichen Verkehrsmittel sind sehr gut erreichbar:
Die S- Bahn Stationen Engelschalking und Johanneskirchen (Flughafenlinie S8) sowie die verschiedenen Busverbindungen zum Arabellapark und in die Innenstadt sind fußläufig in etwa 10 Minuten zu erreichen.
ca. 1 km zur U-Bahn U4/ Arabellapark
ca. 19 Min. in die City mit der S8
ca. 3,5 km zum Englischen Garten
ca. 5 km zum Feringa See
ca. 2 km zum Mittleren Ring
Eine sehr gute Infrastruktur finden Sie hier vor mit einer nahegelegenen Grund- und Hauptschule, einer Realschule mit diversen Sportplätzen, Kindergärten und Gymnasium sowie einem Schwimmbad.
Viele verschiedene Einkaufsmöglichkeiten für den täglichen Bedarf sowie eine Post, Bank und Krankenhaus sind in Kürze erreichbar. Die verschieden Grünanlagen bieten ausreichend Platz für ausgedehnte Spaziergänge oder Joggingrouten zur Erholung.
Ausstattung
Lichterfüllte 2- Zimmer- Wohnung mit großer Dachterrasse und großartigem Ausblick in´s Grüne!
– 1 Schlafzimmer
– 1 Tageslichtbad mit Dusche und Waschmaschinenanschluss
– 1 offene Küche zum Wohn- Essraum
– 1 vollständige EBK mit allen Geräten
– Eichenparkettboden, geölt
– Individuell regulierbare Fußbodenheizung in allen Räumen
– ausgewählte großformatige Fliesen im Bad
– Fenster und Türen mit 3-fach Isolierverglasung
– Griffe aus Edelstahl
– Elektrischer Sonnenschutz im DG
– Elektrische Rollläden
– große Dachterrasse (ca.16m²)
– 1 großes Kellerabteil mit Stromanschluss
Auf Wunsch können auch Teil der Möbel übernommen werden
– 1 Stellplatz in der Tiefgarage mit Parksystem (à 110€/ Mo.)
Sonstiges
Ansprechpartner:
Beatrice von Preysing
Die Anfragen werden per Email erbeten mit aussagekräftigen Angaben zur beruflichen Tätigkeit und Familienstand.
Energieausweisangaben
- Enerigeausweistyp Bedarfsausweis
- Energiekennwert 46 KWh(m²*a)
- Energieeffizienzklasse A
- Energieausweis erstellt am 16.05.2017
- Energieausweis gültig bis 18.05.2027
- Heizungsart Zentralheizung
- Befeuerung / Energieträger Fernwärme
Herzlichen Dank für Ihre Anfrage.
Wir werden diese so schnell wie möglich bearbeiten.
